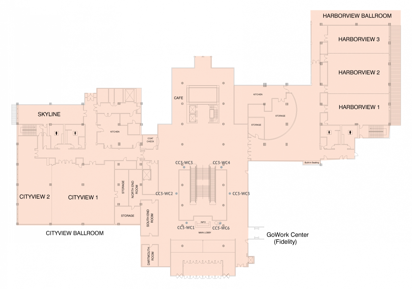
Seaport World Trade Center, Plaza Level, Plaza Level P5 Floorplan