aaaai-2026
https://envision.freeman.com/show/aaaai-2026/facility/main-building/philadelphia-marriott-downtown/level-5
Sender's name has shared the AAAAI 2026 venue with you at the The Pennsylvania Convention Center, to view this please click below button and login or create a account for freeman.
Please note this link will expire in 30 days
All Personal information such as name and email address that has been provided will be utilized to share the requested venue information.
Level 3
Level 4
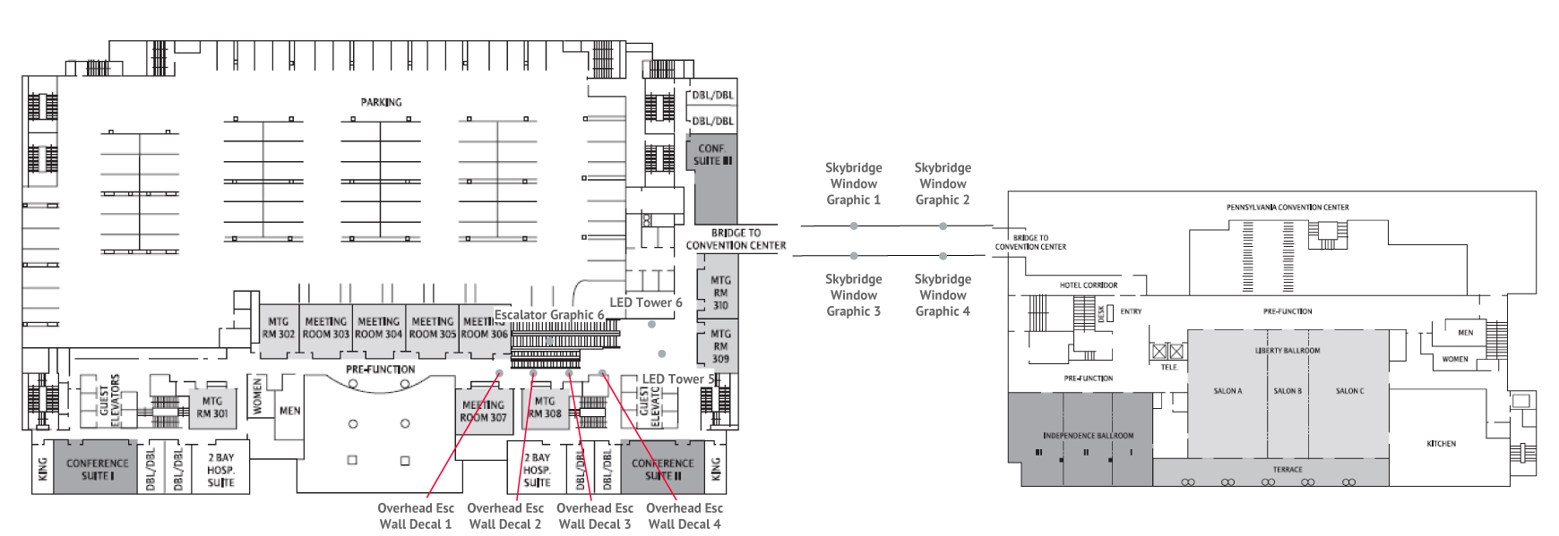
Level 5
No Meeting Rooms
Level: Philadelphia Marriott Downtown
Section: Charging Lounge 8
Size:
Section: Escalator Graphic 8
Size: 330"W x 24.25"H
Section: Graphic Wall 9
Size: 156.25"W x 95.1875"H
Section: Networking Lounge 5
Section: Graphic Wall 10
Section: Graphic Wall 11
Section: LED Tower 9
Section: LED Tower 10
Price(s) or Availability of Items previously added to your cart may have changed. Please review and continue the checkout process.
Sender's name has shared the cart item(s) with you from AAAAI 2026 at the The Pennsylvania Convention Center.
All Personal information such as name and email address that has been provided will be utilized to share the requested cart.