acvim-forum-2026
https://envision.freeman.com/show/acvim-forum-2026/facility/main-building/summit-at-900-pine-level-4/section-s4a
Sender's name has shared the ACVIM FORUM 2026 venue with you at the Seattle Convention Center - Summit, to view this please click below button and login or create a account for freeman.
Please note this link will expire in 30 days
All Personal information such as name and email address that has been provided will be utilized to share the requested venue information.
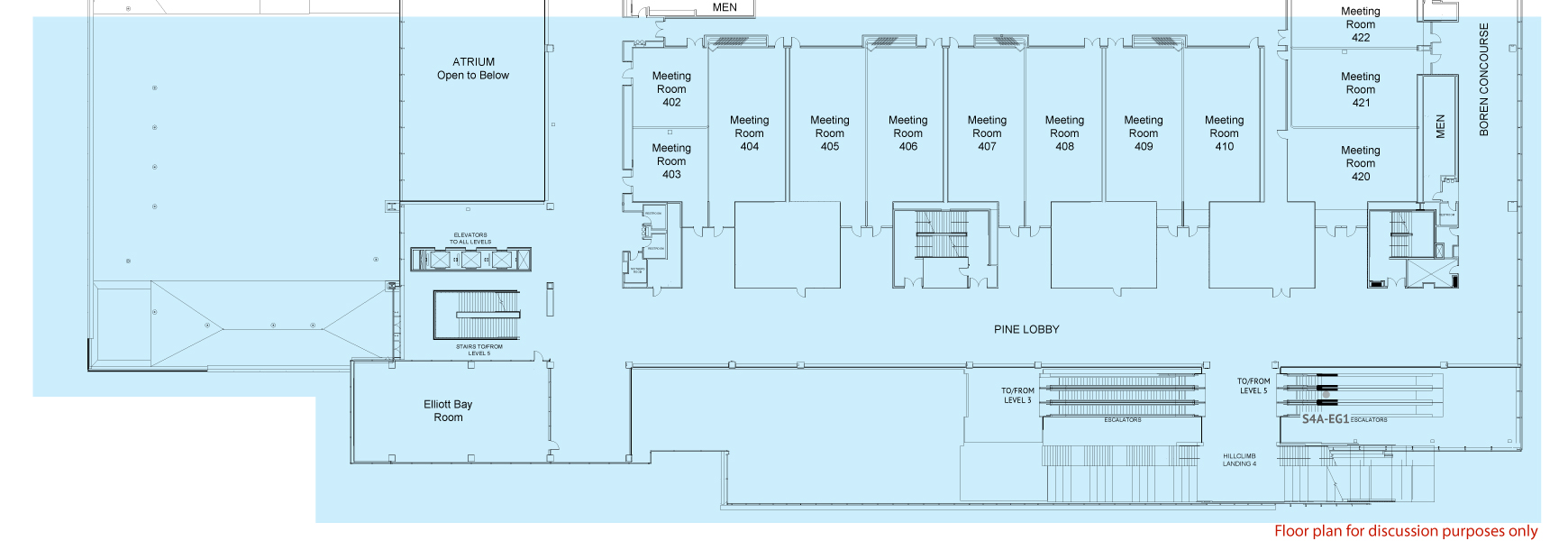
Section S4A
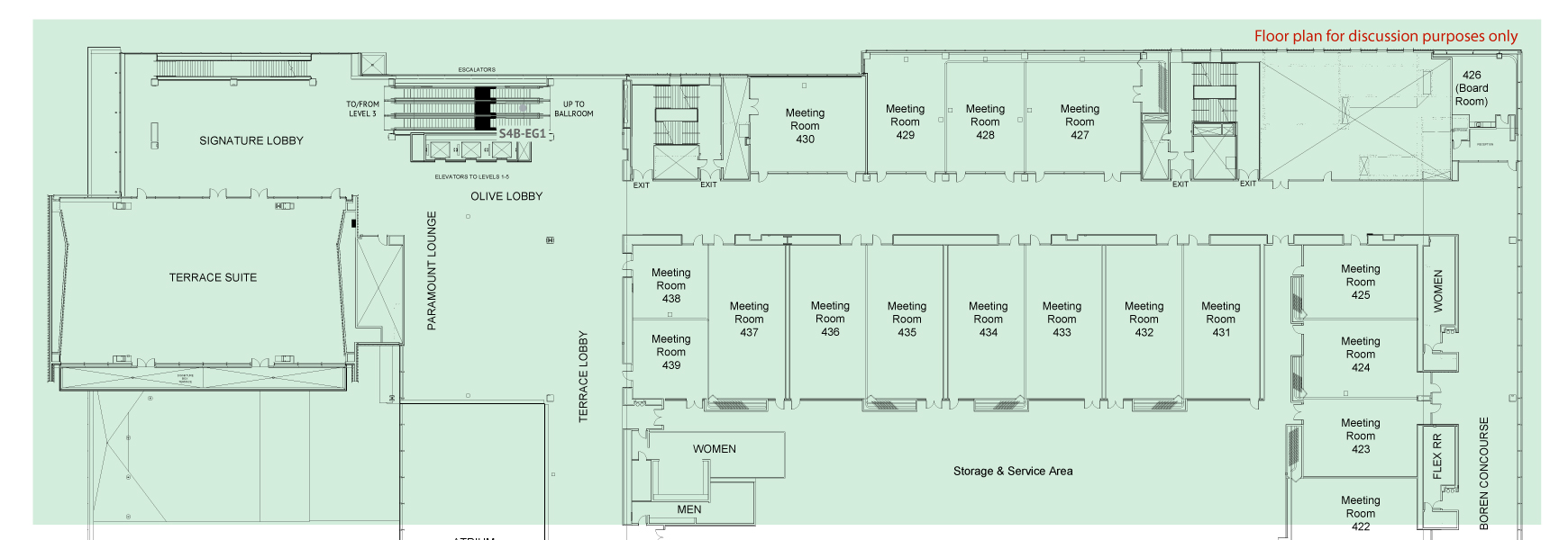
Section S4B
No Meeting Rooms
Level: Summit at 900 Pine - Level 4
Section: Escalator Graphics S4A-EG1
Size: 75.625"W x 23"H
Price(s) or Availability of Items previously added to your cart may have changed. Please review and continue the checkout process.
Sender's name has shared the cart item(s) with you from ACVIM FORUM 2026 at the Seattle Convention Center - Summit.
All Personal information such as name and email address that has been provided will be utilized to share the requested cart.