asm-microbe-2020
https://envision.freeman.com/show/asm-microbe-2020/facility/main-building/grand-concourse/section-gc2
Sender's name has shared the ASM MICROBE 2020 venue with you at the McCormick Place, to view this please click below button and login or create a account for freeman.
Please note this link will expire in 30 days
All Personal information such as name and email address that has been provided will be utilized to share the requested venue information.
Section GC3A
Section GC3B
Section GC1
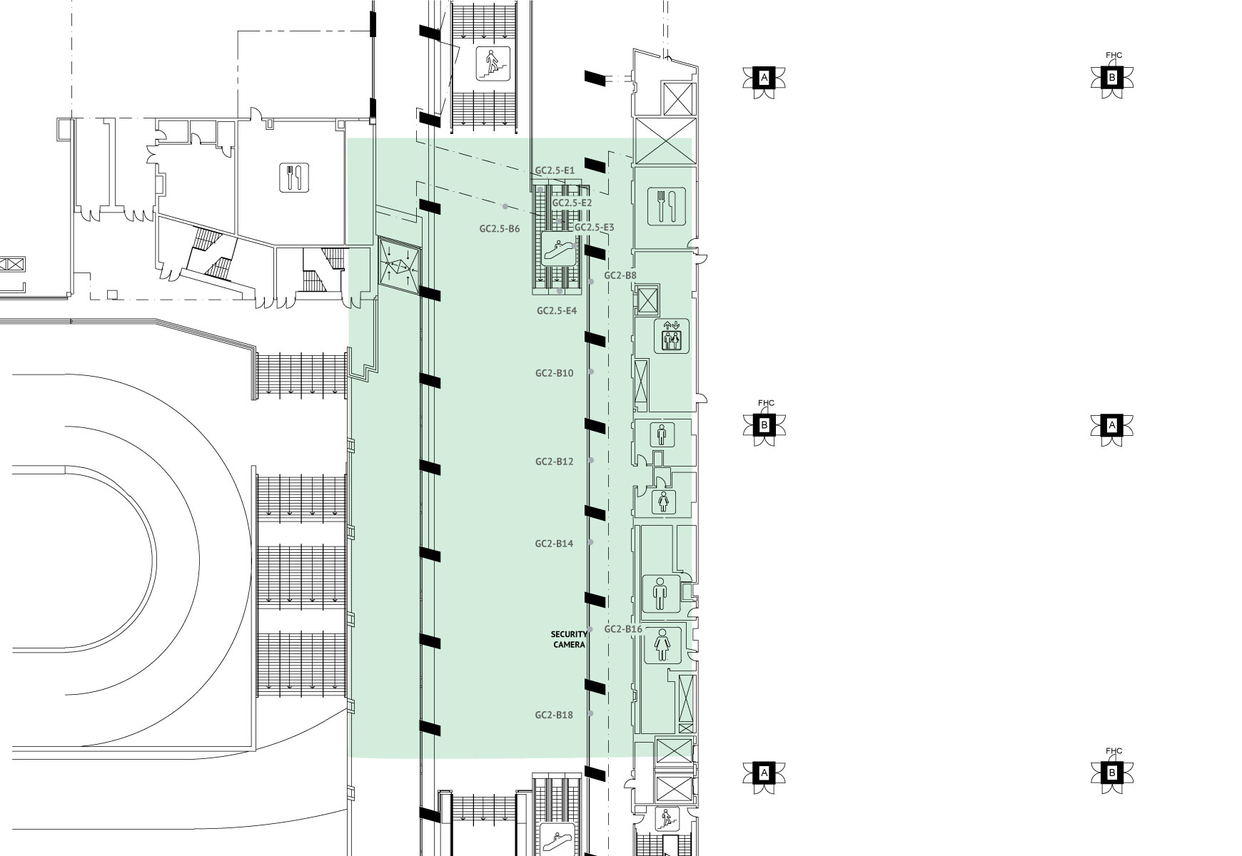
Section GC2
No Meeting Rooms
Level: Grand Concourse
Section: Banner GC2-B8
Size: 20’W x 7’H
Section: Banner GC2-B10
Section: Banner GC2-B12
Section: Banner GC2-B14
Section: Banner GC2-B16
Size: 20’W x 6’H
Section: Banner GC2-B18
Size: 20’W x 4’H
Section: Banner GC2.5-B6
Size: 40'W x 7'H
Section: Escalator Clings GC2.5-E1
Size: (A,C,D,F) 36''W x 23''H / (B,E) 286"W x 22''H
Section: Escalator Clings GC2.5-E2
Section: Escalator Clings GC2.5-E3
Section: Escalator Runners GC2.5-E4
Size: (A,B) 14"W x 432"H
Price(s) or Availability of Items previously added to your cart may have changed. Please review and continue the checkout process.
Sender's name has shared the cart item(s) with you from ASM MICROBE 2020 at the McCormick Place.
All Personal information such as name and email address that has been provided will be utilized to share the requested cart.