chest-2025
https://envision.freeman.com/show/chest-2025/facility/areas
Sender's name has shared the CHEST 2025 venue with you at the McCormick Place, to view this please click below button and login or create a account for freeman.
Please note this link will expire in 30 days
All Personal information such as name and email address that has been provided will be utilized to share the requested venue information.
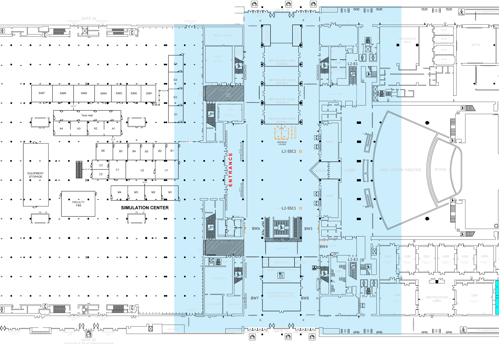
Section L2
No Meeting Rooms
Price(s) or Availability of Items previously added to your cart may have changed. Please review and continue the checkout process.
Sender's name has shared the cart item(s) with you from CHEST 2025 at the McCormick Place.
All Personal information such as name and email address that has been provided will be utilized to share the requested cart.