cisco-live-2024
https://envision.freeman.com/show/cisco-live-2024/facility/areas
Sender's name has shared the Cisco Live 2024 venue with you at the Mandalay Bay Convention Center, to view this please click below button and login or create a account for freeman.
Please note this link will expire in 30 days
All Personal information such as name and email address that has been provided will be utilized to share the requested venue information.
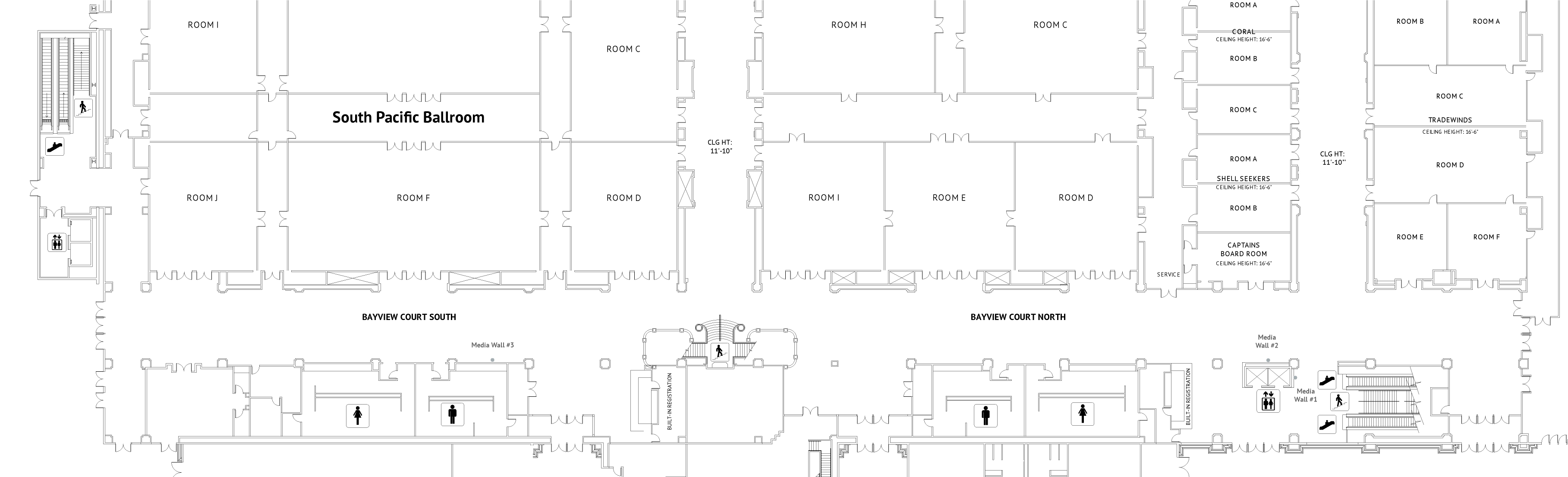
Bayview Court
No Meeting Rooms
Price(s) or Availability of Items previously added to your cart may have changed. Please review and continue the checkout process.
Sender's name has shared the cart item(s) with you from Cisco Live 2024 at the Mandalay Bay Convention Center.
All Personal information such as name and email address that has been provided will be utilized to share the requested cart.