coverings-2025
https://envision.freeman.com/show/coverings-2025/facility
Sender's name has shared the Coverings 2025 venue with you at the Orange County Convention Center, to view this please click below button and login or create a account for freeman.
Please note this link will expire in 30 days
All Personal information such as name and email address that has been provided will be utilized to share the requested venue information.
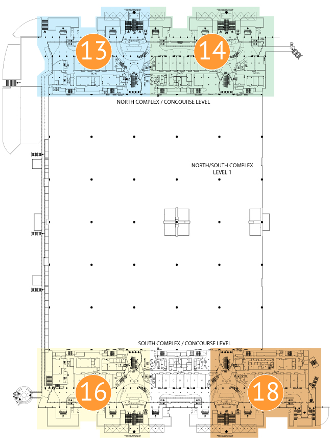
Section 13
Section 14
Section 16
Section 18
No Meeting Rooms
Price(s) or Availability of Items previously added to your cart may have changed. Please review and continue the checkout process.
Sender's name has shared the cart item(s) with you from Coverings 2025 at the Orange County Convention Center.
All Personal information such as name and email address that has been provided will be utilized to share the requested cart.