infocomm-2026
https://envision.freeman.com/show/infocomm-2026/facility/main-building/north-level-2
Sender's name has shared the INFOCOMM 2026 venue with you at the Las Vegas Convention Center, to view this please click below button and login or create a account for freeman.
Please note this link will expire in 30 days
All Personal information such as name and email address that has been provided will be utilized to share the requested venue information.
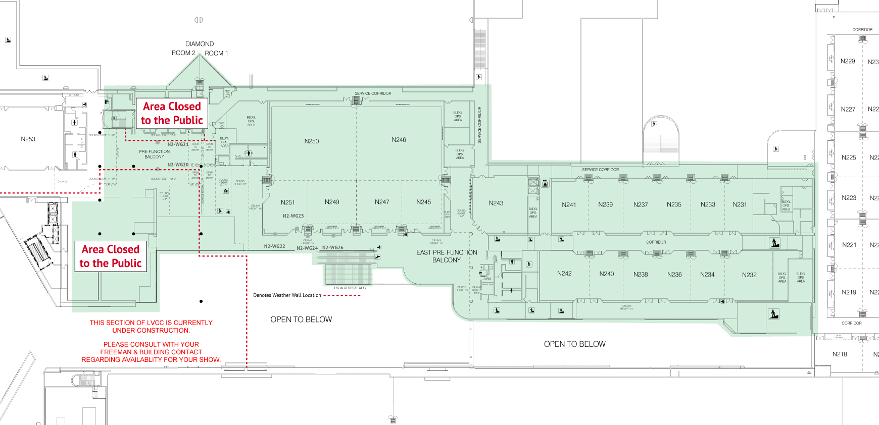
Section N2A
Section N2B
No Meeting Rooms
Price(s) or Availability of Items previously added to your cart may have changed. Please review and continue the checkout process.
Sender's name has shared the cart item(s) with you from INFOCOMM 2026 at the Las Vegas Convention Center.
All Personal information such as name and email address that has been provided will be utilized to share the requested cart.