optometry-s-meeting-2023
https://envision.freeman.com/show/optometry-s-meeting-2023/facility/main-building/level-3-ballroom/section-7
Sender's name has shared the Optometry’s Meeting 2023 venue with you at the Walter E. Washington Convention Center, to view this please click below button and login or create a account for freeman.
Please note this link will expire in 30 days
All Personal information such as name and email address that has been provided will be utilized to share the requested venue information.
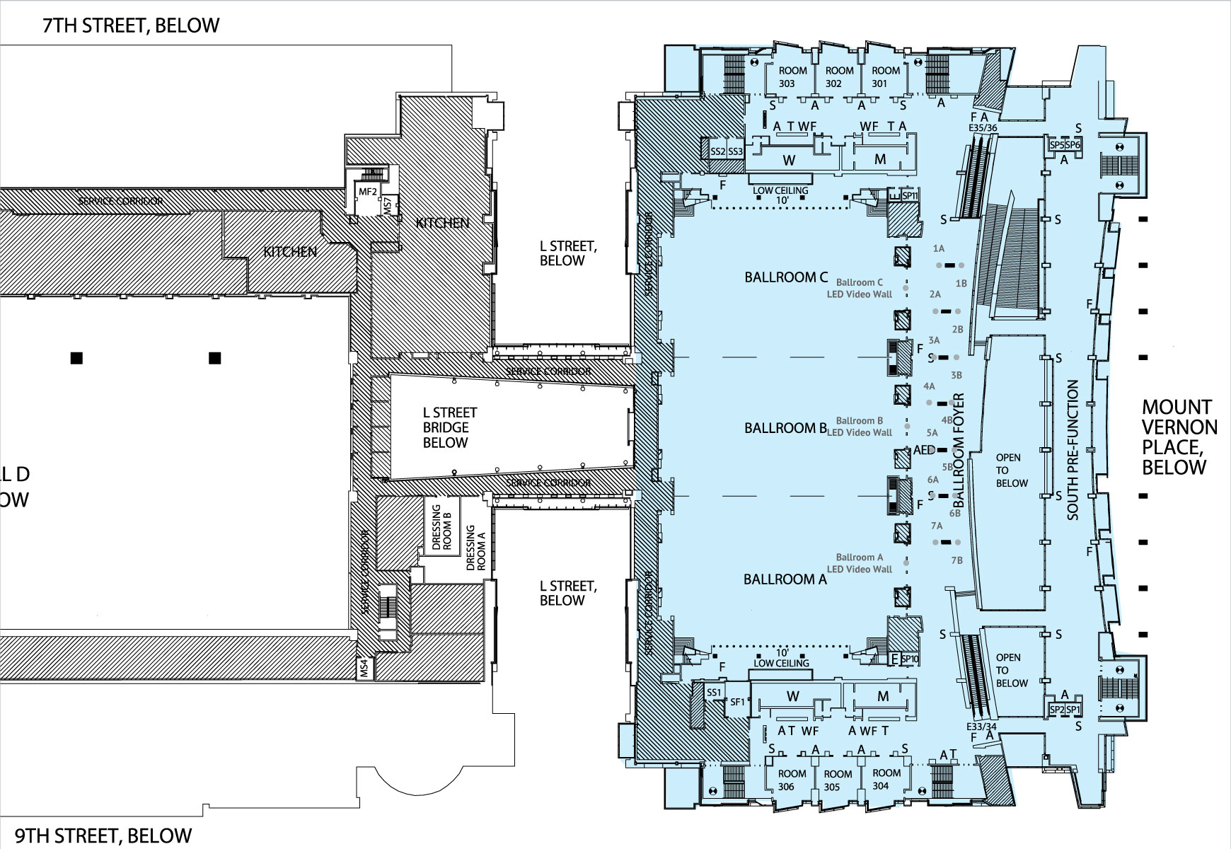
Section 7
No Meeting Rooms
Level: L3 Ballroom
Section: Ballroom A LED Video Wall
Size: 1920W x 360H
Section: Ballroom B LED Video Wall
Section: Ballroom C LED Video Wall
Section: Ballroom Column 1A
Size: 58''W x 120''H
Section: Ballroom Column 1B
Section: Ballroom Column 2A
Section: Ballroom Column 2B
Section: Ballroom Column 3A
Section: Ballroom Column 3B
Section: Ballroom Column 4A
Section: Ballroom Column 4B
Section: Ballroom Column 5A
Section: Ballroom Column 5B
Section: Ballroom Column 6A
Section: Ballroom Column 6B
Section: Ballroom Column 7A
Section: Ballroom Column 7B
Price(s) or Availability of Items previously added to your cart may have changed. Please review and continue the checkout process.
Sender's name has shared the cart item(s) with you from Optometry’s Meeting 2023 at the Walter E. Washington Convention Center.
All Personal information such as name and email address that has been provided will be utilized to share the requested cart.