cisco-live-2024
https://envision.freeman.com/show/cisco-live-2024/facility/main-building/mblevel-1/wos-foyer
Sender's name has shared the Cisco Live 2024 venue with you at the Mandalay Bay Convention Center, to view this please click below button and login or create a account for freeman.
Please note this link will expire in 30 days
All Personal information such as name and email address that has been provided will be utilized to share the requested venue information.
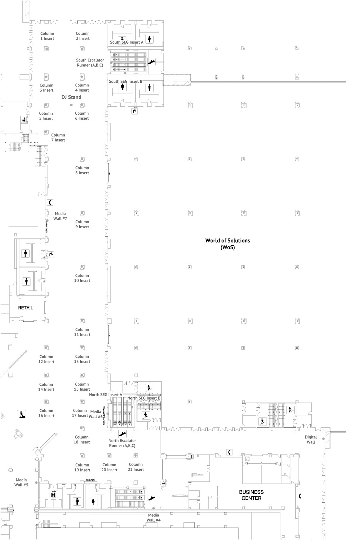
WoS/Meals Foyer
WoS Foyer
Shark Reef
Convention Center Entrance
Outside
No Meeting Rooms
Level: MB L1
Section: Column Insert 1
Size: 22.5"w x 160"h - 2 sides
Section: Column Insert 2
Section: Column Insert 3
Section: Column Insert 4
Section: Column Insert 5
Section: Column Insert 6
Section: Column Insert 7
Section: Column Insert 8
Section: Column Insert 9
Section: Column Insert 10
Section: Column Insert 11
Section: Column Insert 12
Section: Column Insert 13
Section: Media Wall #5
Size: 17'-8.6"W x 11'-7"H
Section: Media Wall #6
Size: 23'-7.5"W x 13'-5"H
Section: Column Insert 14
Section: Column Insert 15
Section: Media Wall #7
Size: 11'-9.75"W x 6'-7.7"H
Section: Column Insert 16
Section: Column Insert 17
Section: Column Insert 18
Section: Column Insert 19
Section: Column Insert 20
Section: Column Insert 21
Section: North Escalator Runner (A, B, C)
Size: (A,B) 12"w x 1008"h / (C-Center) 24"w x 1008"h
Section: North SEG Insert A
Size: 217.375"w x 136.25"h
Section: North SEG Insert B
Size: 217.375"w x 136.5"h
Section: South Escalator Runner (A, B, C)
Size: (A,B) 12"w x 708"h / (C-Center) 24"w x 708"h
Section: South SEG Insert A
Size: 140.625"w x 181.5"h
Section: South SEG Insert B
Size: 140.75"w x 180.875"h
Price(s) or Availability of Items previously added to your cart may have changed. Please review and continue the checkout process.
Sender's name has shared the cart item(s) with you from Cisco Live 2024 at the Mandalay Bay Convention Center.
All Personal information such as name and email address that has been provided will be utilized to share the requested cart.