Notifications Clear all
Your Cart (0)
Review Your Cart
Cart Total:
Total:
Hero Image
Sold

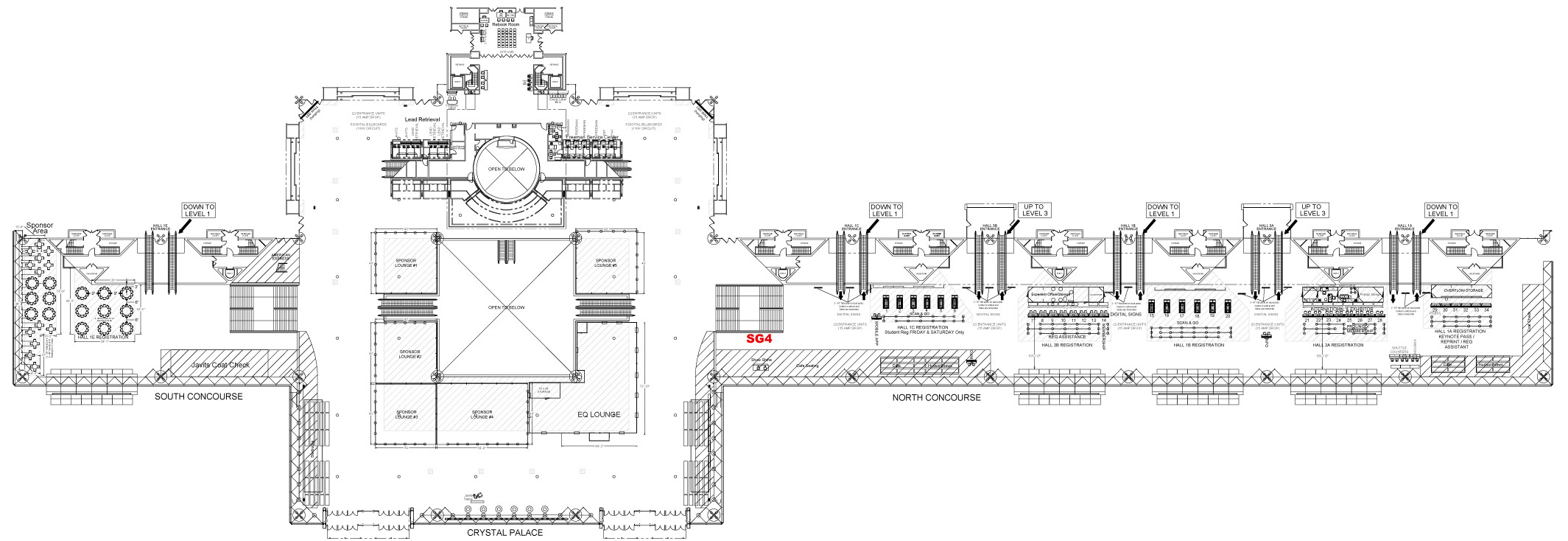
Stair Railing Graphics SG4

North Concourse


PRICE
USD $ 20,000.00

AREAS / SECTION

All Levels : North Concourse

Browse Similar Opportunities

Disclaimer

Every effort has been made to ensure the accuracy of all information contained on this photo. However, no warranties, either expressed or implied, are made with respect to this photo. If the location of building columns, utilities or other architectural components of the facility is a consideration in the construction or usage of a graphic element it is the sole responsibility of the client to physically inspect the facility to verify all dimensions and locations.