aaaai-2023
https://envision.freeman.com/show/aaaai-2023/facility/main-building/hbgcc-item/section-l2b
Sender's name has shared the AAAAI 2023 venue with you at the Henry B. Gonzalez Convention Center, to view this please click below button and login or create a account for freeman.
Please note this link will expire in 30 days
All Personal information such as name and email address that has been provided will be utilized to share the requested venue information.
Section L1C
Section L1D
Section L1E
Section L1B
Section L1A
Section L2C
Section L2D
Section L2A
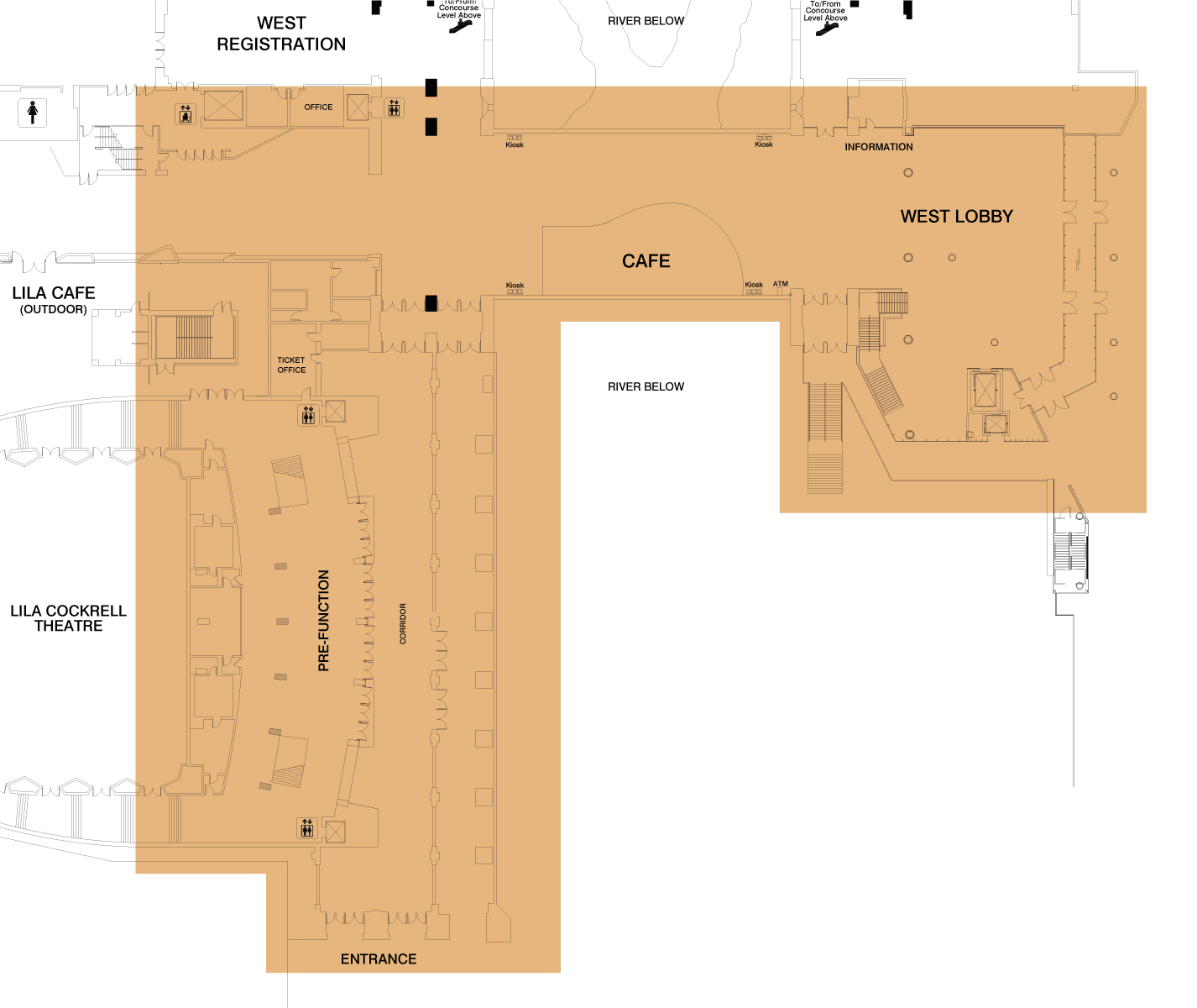
Section L2B
Section L3A
Section L3B
Section L3C
Section L3D
No Meeting Rooms
Level: Henry B. Gonzalez Convention Center
Section: Graphic Wall 1
Size: 156"W x 93"H
Section: Digital Conference Schedule Board 2
Size:
Section: Banner 1
Size: 30’W x 5’H
Section: Banner 2
Size: 22’W x 5’H
Section: LED Wall 2
Section: Banner 3
Size: 20'W x 5'H
Section: Branded Cube 1
Section: Branded Cube 2
Section: Sitting Cubes 1
Section: Branded Cube 3
Section: Escalator Graphic 4
Size: (4) Panels of 527"W x 26"H each
Section: Wall Graphic 1
Size: 25'W x 8'H
Section: Window Graphic 2
Size: (8) Panels of 84"W x 47.875"H each
Price(s) or Availability of Items previously added to your cart may have changed. Please review and continue the checkout process.
Sender's name has shared the cart item(s) with you from AAAAI 2023 at the Henry B. Gonzalez Convention Center.
All Personal information such as name and email address that has been provided will be utilized to share the requested cart.