Notifications Clear all
Your Cart (0)
Review Your Cart
Cart Total:
Total:
Name

The Aesthetic Meeting 2025

Venue

Austin Convention Center

Dates

March 21–23, 2025

Available

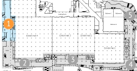
Window Cling L1 WC08

Hall 5 Lobby / Fourth Street


WINDOW CLING L1 WC08
USD $ 6,000.00

AREAS / SECTION

Level One : Section 1

Browse Similar Opportunities

Disclaimer

Every effort has been made to ensure the accuracy of all information contained on this photo. However, no warranties, either expressed or implied, are made with respect to this photo. If the location of building columns, utilities or other architectural components of the facility is a consideration in the construction or usage of a graphic element it is the sole responsibility of the client to physically inspect the facility to verify all dimensions and locations.

Austin Convention Center